免费停车位
更新时间:11月21日

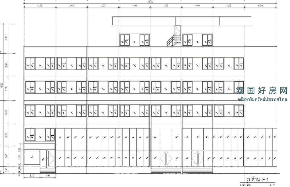
翁通郎区 | Ekkamai - Ramintra 展厅出租 TO-2025-10-05
主建筑面积共 2,200 平方米(含屋顶平台)
后方可停放 15 辆以上车辆,并设有 3 间员工宿舍
土地面积近 1 莱,后方为花园及停车区
租金优惠:600,000 泰铢/月
押金4个月 + 预付1个月
最短租期:3年
市政自来水 &;amp; 三相电
许可证性质:商业 + 住宅
土地税由承租方承担
备注:
现有家具为业主出售物品,当前物业为家具展示厅。











点击查看周边
200平方
29137元
32平方
3810元
156平方
32499元
200平方
15689元
267平方
26896元
275平方
10758元
35平方
5827元
45平方
4034元
46平方
7396元
35平方
6052元