免费停车位
更新时间:02月13日 可使用日期:

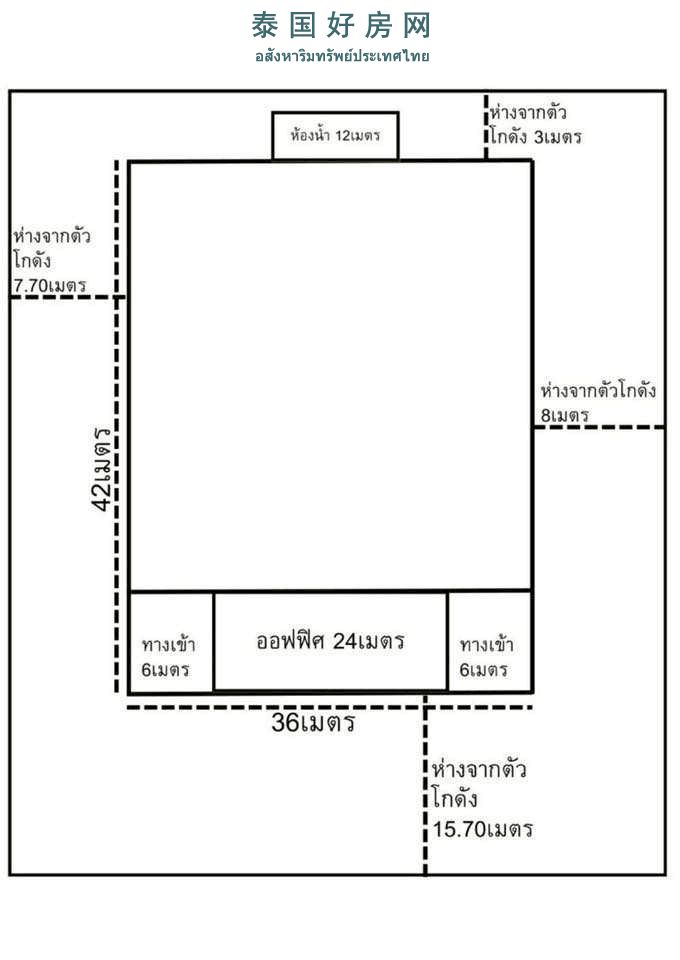
北榄府 |【紫色区】Bang Phli工业园区附近 工厂仓库出租 UA-2026-02-59
可用于多种经营用途,配套办公室面积 300 平方米
建筑左右两侧设有附属空间,并覆盖遮阳屋顶,使用面积充足
距离 Bang Phli 工业园区仅 1.8 公里
距离 Thepharak 路约 3 公里
地面承重:3 吨 / 平方米
电力系统支持至 400 安培
租金:220,000 泰铢 / 月
可协助办理工厂许可证(Ror.Ngor.4)及 BOI 相关手续








点击查看周边
80平方
88456元
101平方
8424元
125平方
26326元
416平方
42122元
230平方
18955元
120平方
13690元
200平方
9793元
450平方
25273元
450平方
12637元
585平方
60024元