免费停车位
更新时间:2025年12月03日

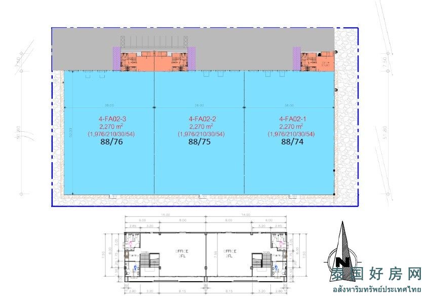
北柳府 |【保税区】Bangpakong Km. 53 工厂出租 UO-2025-10-37
1)总面积 = 2,270 平方米
仓库面积 = 1,976 平方米
尺寸(宽×长)= 38 × 52 米
办公室面积 = 210 平方米
斜坡 = 30 平方米
卷帘门 = 4 个
停车位 = 5 个
2)总面积 = 2,270 平方米
仓库面积 = 1,976 平方米
尺寸(宽×长)= 38 × 52 米
办公室面积 = 210 平方米
斜坡 = 30 平方米
卷帘门 = 4 个
停车位 = 5 个
3)总面积 = 2,270 平方米
仓库面积 = 1,976 平方米
尺寸(宽×长)= 38 × 52 米
办公室面积 = 210 平方米
斜坡 = 30 平方米
卷帘门 = 4 个
停车位 = 5 个
1-3)总面积 = 6,810 平方米
仓库面积 = 5,928 平方米
尺寸(宽×长)= 114 × 52 米
办公室面积 = 630 平方米
斜坡 = 90 平方米
卷帘门 = 11 个
停车位 = 15 个
租金:170 泰铢/平方米
租期:3 年
押金:5 个月
预付:1 个月
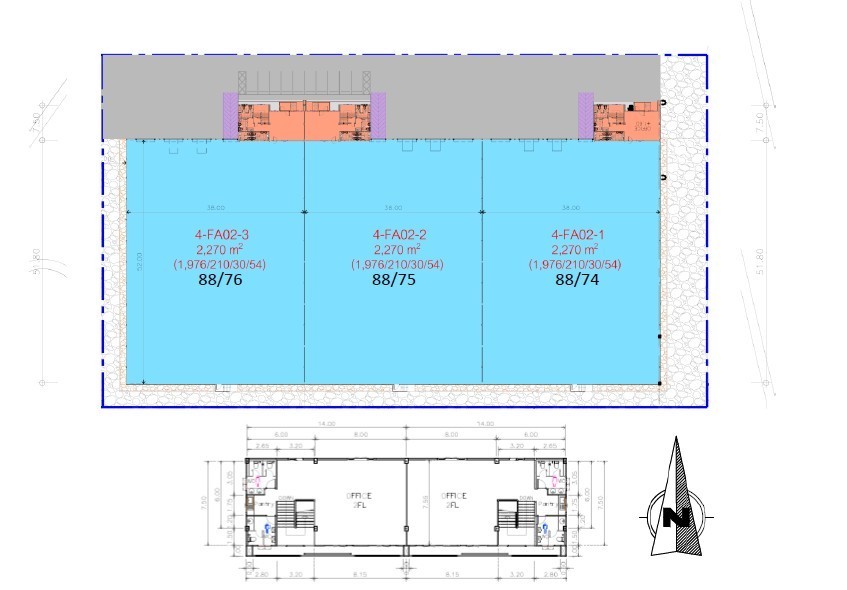
北柳府 |【保税区】Bangpakong Km. 53 工厂出租 UO-2025-10-37
1)总面积 = 2,270 平方米
仓库面积 = 1,976 平方米
尺寸(宽×长)= 38 × 52 米
办公室面积 = 210 平方米
斜坡 = 30 平方米
卷帘门 = 4 个
停车位 = 5 个
2)总面积 = 2,270 平方米
仓库面积 = 1,976 平方米
尺寸(宽×长)= 38 × 52 米
办公室面积 = 210 平方米
斜坡 = 30 平方米
卷帘门 = 4 个
停车位 = 5 个
3)总面积 = 2,270 平方米
仓库面积 = 1,976 平方米
尺寸(宽×长)= 38 × 52 米
办公室面积 = 210 平方米
斜坡 = 30 平方米
卷帘门 = 4 个
停车位 = 5 个
1-3)总面积 = 6,810 平方米
仓库面积 = 5,928 平方米
尺寸(宽×长)= 114 × 52 米
办公室面积 = 630 平方米
斜坡 = 90 平方米
卷帘门 = 11 个
停车位 = 15 个
租金:170 泰铢/平方米
租期:3 年
押金:5 个月
预付:1 个月






点击查看周边
3840平方
37元
6000平方
32元
500平方
16874元
800平方
23元
200平方
21元
2270平方
36元
3000平方
36元
3000平方
36元
2275平方
36元
5510平方
80153元