泳池健身房桑拿房带家具小区花园免费停车位
更新时间:03月05日

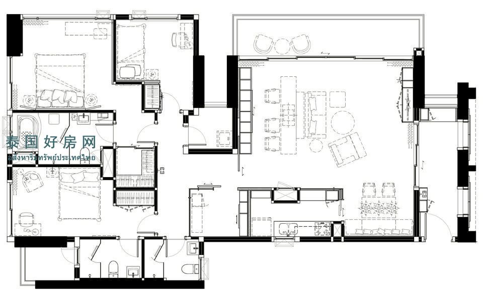
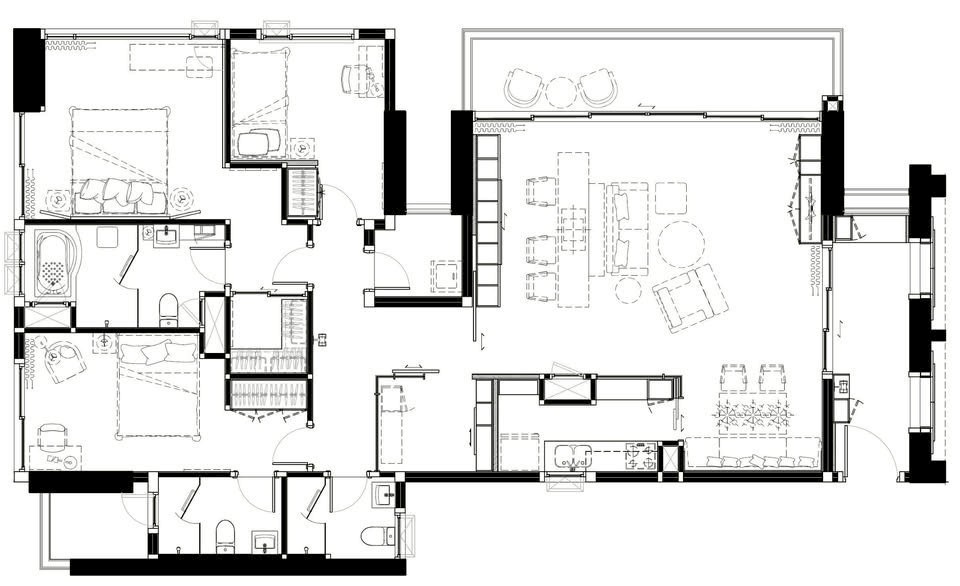
曼柯廉区 | Star View Rama 3 公寓出租/售 TO-2026-03-24
29楼
3卧3卫,160.3平米
客厅、厨房、储藏室
家具齐全,拎包入住
3个停车位
出租:100,000泰铢/月,押二付一,一年合同
出售:2200万泰铢,过户费各半






点击查看周边
32平方
3375元
47平方
4640元
88平方
7804元
47平方
4430元
26平方
3164元
160平方
21093元
210平方
14765元
31平方
3797元
60平方
5273元
47平方
6961元