泳池健身房桑拿房地铁或轻轨带家具小区共享空间小区花园免费停车位
更新时间:04月10日 11:24

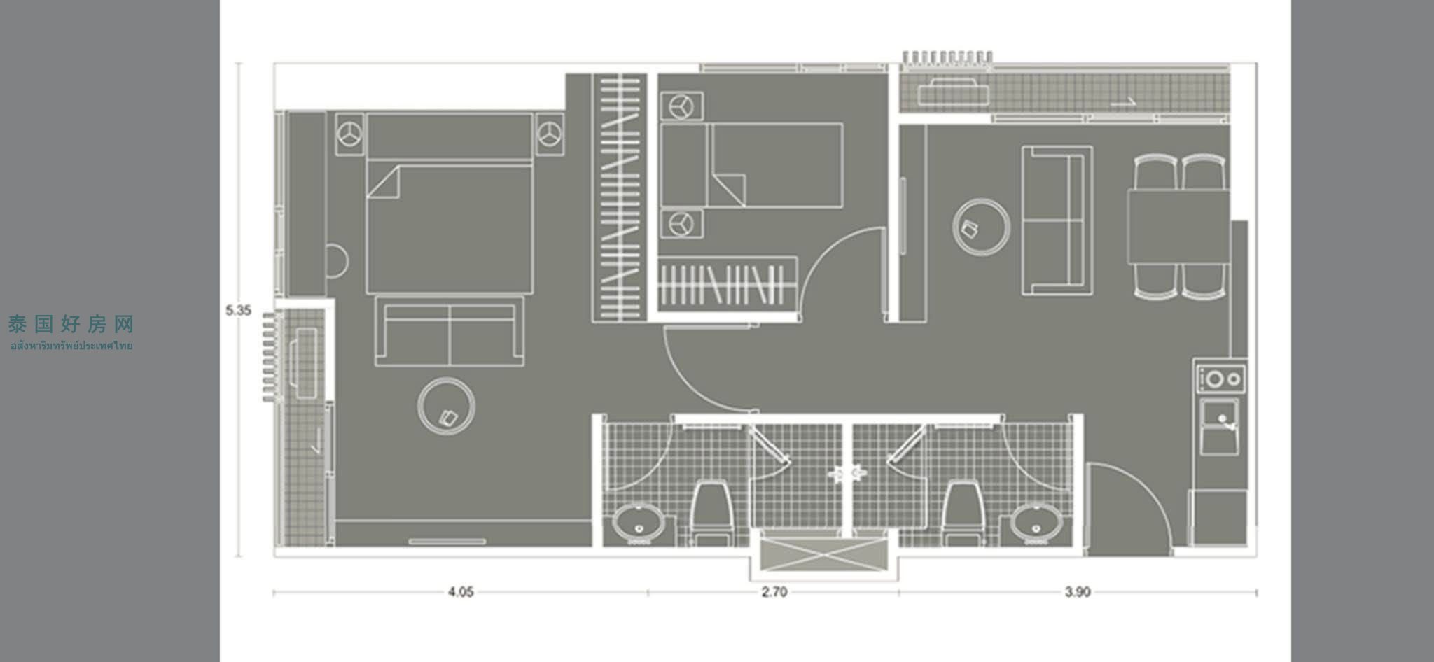
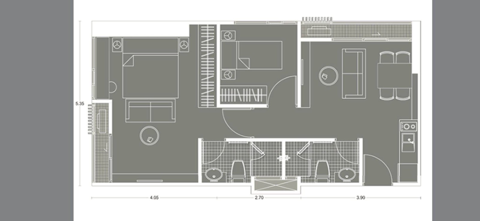
辉煌区 | Noble Revolve Ratchada 公寓出租/售 TO-2026-04-57
22楼
2卧2卫,53平米
1客厅、1厨房
家具齐全,拎包入住
有停车位
***不能养宠物
***禁止吸烟
出租:32,000泰铢/月,押二付一,一年合同
出售:799万泰铢,过户费用承担各一半















26平方
3619元
68平方
7452元
26平方
3406元
168平方
11710元
146平方
11710元
144平方
8516元
106平方
10219元
33平方
5110元
206平方
13838元
53平方
6813元