泳池健身房桑拿房地铁或轻轨带家具小区共享空间小区花园免费停车位
更新时间:8小时前

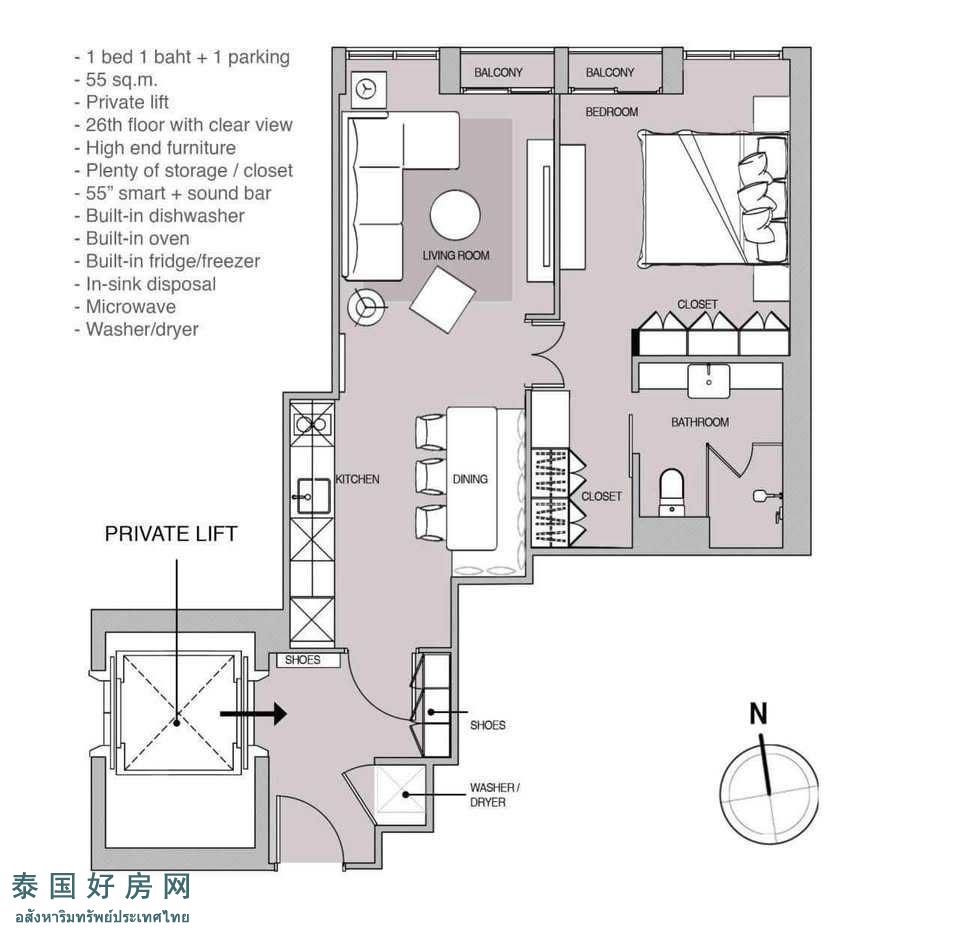
巴吞旺区 | NOBLE PLOENCHIT 公寓出租/出售 TO-2026-04-105
B栋,26楼
1卧1卫,56平米
1客厅、1厨房
家具齐全,拎包入住
1个停车位
出租:55,000泰铢/月,押二付一,一年合同
出售:1700万泰铢,过户费各半










252平方
18045元
77平方
11028元
36平方
7018元
38平方
5614元
56平方
11028元
66平方
8020元
46平方
4612元
35平方
4010元
66平方
15038元
72平方
20050元